Стратегический
подход
к проектированию

Творчество
и точный
расчёт

Экономическая
эффективность
может быть красивой

Обсудить проект

Закрыть

Спасибо, ваше сообщение было отправлено, мы свяжемся в ближайшее время

Ошибка отправки, попробуйте еще раз

Квартал Чехова

Вниз
Квартал Чехова фото 1
Квартал Чехова фото 2
Квартал Чехова фото 3

О проекте

ЖК «Кварталы Чехова»

Проект, вдохновленный духом места и творчеством А.П.Чехова, стал пилотным в комплексном развитии территорий во Владивостоке.

Исторический контекст

Район Голубиной Пади — один из исторических районов Владивостока с уникальным прошлым. Свое название местность получила еще в XIX веке благодаря особенностям рельефа и большому количеству голубей, обитавших в этой живописной долине между сопок. В дореволюционный период здесь располагались первые городские постройки, а в советское время — промышленные зоны и склады, которые со временем пришли в упадок.

Возрождение территории

Проект реновации был инициирован в 2022 году как пилотный в рамках программы КРТ в Приморском крае. Участок на улице Чехова, исторически являвшийся частью старого города, долгое время требовал комплексного обновления. В 2023 году был представлен мастер-план застройки, разработанный с учетом сохранения исторической памяти места и его интеграции в современный городской ландшафт Владивостока.

Концепция

Создание гармоничного городского пространства, сочетающего современный комфорт и исторические мотивы, вдохновленные творчеством А.П. Чехова. Архитектурное решение отражает диалог восточной и западной культур, характерный для идентичности Владивостока.

Цель проекта

Возрождение исторического района через создание многофункционального общественно-жилого кластера, интегрированного в исторический контекст, с развитой социальной и коммерческой инфраструктурой для жизни, работы и отдыха.

Стадии проектирования

Проектная документация

Рабочая документация

Год

2023-2025

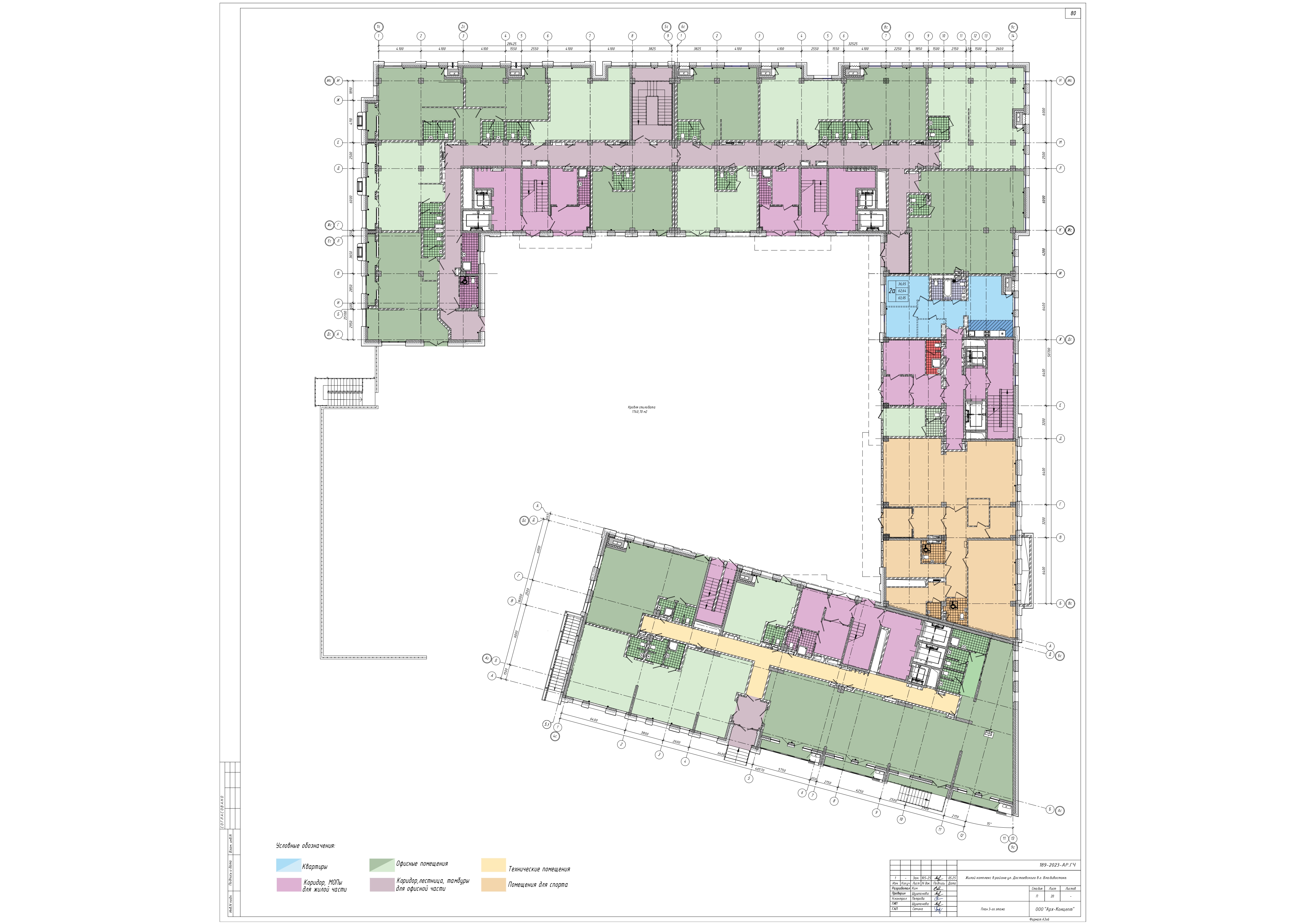
Характеристики

НазначениеЖилое здание
Площадь земельного участка6 938 м²
 С 1 по 2 этажи расположены рестораны и спортивные сооружения, на 3 этаже офисы, выше — жилье
 В комплекс входит 3 этажа паркинга
Общая площадь здания36 968 м²
 Жилая площадь — 17 282 м²
Офисы — 2 082 м²
Ресторан — 529 м²
Спорт — 198,75 м²
Количество этажейот 2 до 19
Количество квартир283 шт.
Вместимость паркинга140 машино-мест

Ситуационная схема

Ситуационная схема

Исторические фото

Исторические фото Исторические фото

Планировочные решения

Планировочные решения Планировочные решения